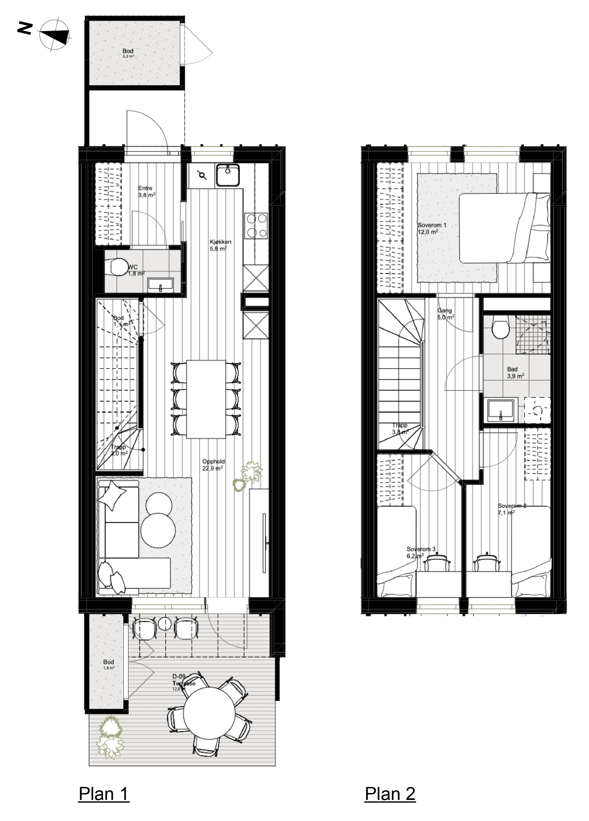
D-09
Nytt og flott rekkehus over to plan med familievennlig beliggenhet. Fra stuen og kjøkken er det utgang til en flott og solrik terrasse med tilknytning til en av boligens to boder. Fra gangen har man tilgang til separat WC-rom, i tillegg til bad i andre etasje hvor det også er tre soverom av god størrelse.
Solgt
Rekkehus
D-09
Soverom
3
BRA
85
BRA-i
80
BRA-e
5
Uteplass
Felleskostnader
1 570
Omkostninger
26 550
Pris
Totalpris
5 530 140
Parkering inkludert
Nei
